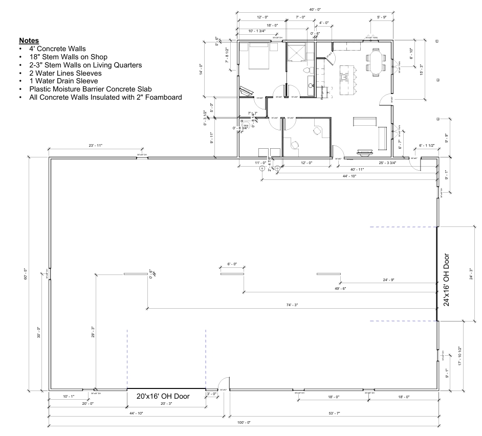
CAM Building Supplies offers expert home and barndominium design services, tailored to meet the unique needs and preferences of each client. Whether you’re building a traditional home or a modern barndominium, our team provides customized designs that blend functionality, style, and durability. With a focus on maximizing space, efficiency, and aesthetic appeal, we help bring your vision to life, ensuring a seamless design process from concept to completion.



